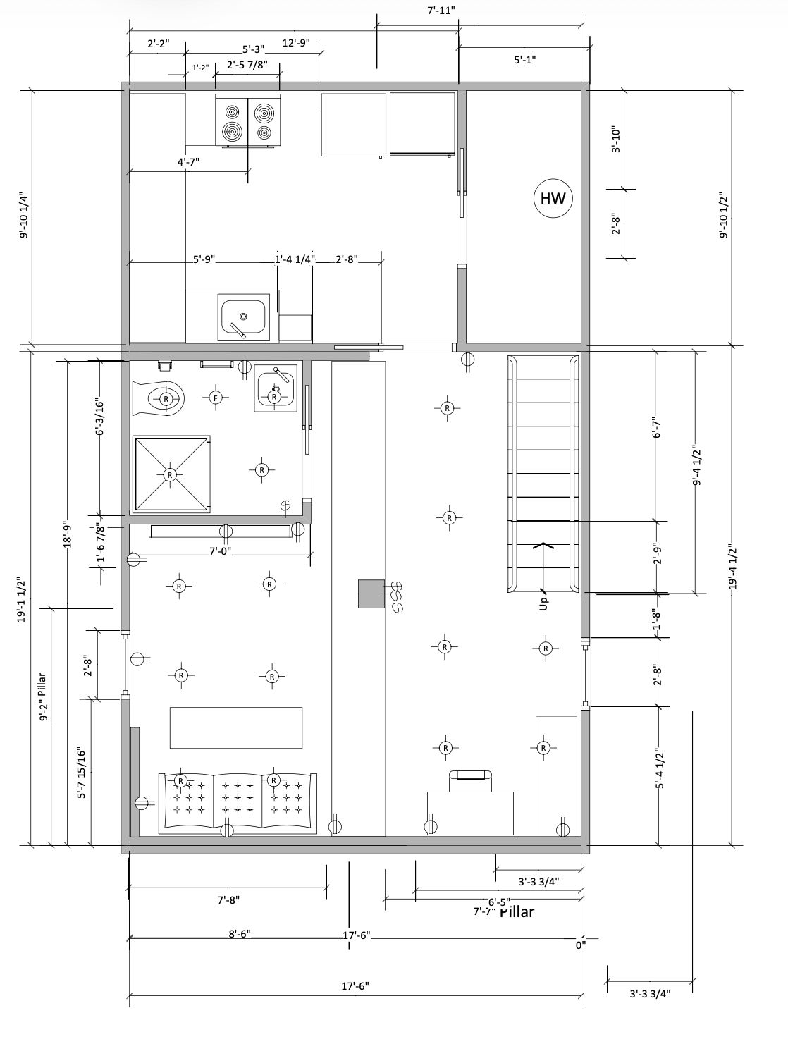
Drawing
Things to Think About
- Internal walls
- drainage under walls (dimpled membrane/platon or PVC shims) → PLATON
- pressure treated for bottom plate → WHY NOT
- polly wrapped around bottom plate → YEP
- typar behind wall to hold in fiberglass → YEP
- 1/2 - 1" gap between concrete and wall → YEP
- fiberglass pink insulation R16? → SURE
- vapour barrier on hot side → ALWAYS
- Upper Stair Wall
- strap wall for drywall? → Furring strips
or cement board glued to foundation wall???.
- strap wall for drywall? → Furring strips
- Under Stair Wall
Wall from mid stairs → Wall on stairs only. Enclose pillar.- need to figure out storage under stairs -> Later
- drawers?
- doors?
- Flooring
- decide on vinyl flooring → DONE
- Other
Mortar and Waterproof exterior wall along stairs (upper and lower)→ DONEremove rock from under stairs and re-concrete?→ DONE
Fireplace/heat source?→ DONE
Supplies
Wall Construction
- 2x4s
- 2x4 pressure treated for bottom plates
- strapping for wall and ceiling
- shims
- screws/nails - Bryan to supply nails ?
- platon (Bryan to supply)
- tapcon screws
- poly
- Typar
- 1 door (28")
- 1 pocket door assemblies
- 1x4 PT strapping for cinder block wall and stairs
- Construction adhesive
Flooring
- vinyl planking
- baseboards - 1x4 pine painted white.
Electrical
- wire
- pot lights
- plugs
- etc..
Insulation
- 16" 2x4 fiberglass pink insulation
Drywall
- drywall
- mud
- fiber tape
Tasks in Order
| Task | Owner | Status |
|---|---|---|
| Jenny | DONE |
| Jenny | DONE |
| Me | DONE |
| Me | DONE |
| Me | DONE |
| Me | DONE |
| Bryan | DONE |
| Me | |
| Me | DONE |
| Me | |
| Me | |
| Me | |
| Me | |
| Me | |
| Bryan | |
| Bryan | |
| Bryan | |
| Bryan |
Bathroom Rough-in
Toilet
Drain flush with floor.
Assumes finished walls.
Shower
Shower faucet between 32" - 50" from floor.
Self Levelling the Brewery Room
| Product | QTY | Link |
|---|---|---|
| Primer - Sika Level-01 Primer | 1 | homedepot.ca |
| Sika Level-125CA, 22.7 Kg, Self-Leveling Cement | ~23 bags | homedepot.ca |
Room Size: 13' x 10' (130 sqft)
Height Measurements :
| Distance to Laser Line | Diff from Drain | Actual assuming Max 1" | |
|---|---|---|---|
| Drain | 41.5" | 0 | 0 |
| Corner 1 | 41" | 0.5 | 0.5 |
| Corner 2 | 40.25" | 1.25 | 1.0 |
| Corner 3 | 39.5" | 2.0 (max 1) | 1.0 |
| Corner 4 | 40.5" | 1.0 | 1.0 |
| AVG: | 1.18" | 0.875" |
Given values
Room area: 13 ft × 10 ft = 130 ft²
Average thickness: 0.875 in
Yield per 22.7 kg bag (Sika Level-125 CA): ≈ 0.45 ft³
Convert thickness to feet
0.875 in ÷ 12 = 0.0729 ft
Compute total volume
130 ft² × 0.0729 ft = 9.48 ft³
Divide by yield per bag
9.48 ft³ ÷ 0.45 ft³/bag = 21.1 bags
Add waste factor (10–15 %)
21.1 × 1.10 = 23.2 bags → round up
Lighting
Files
| File | Link |
|---|---|
| Visio Drawing | |
| Shower Installation Manual |



